Rekreačný apartmán na predaj v Novalja
Realitná kancelárie HR-reality ponúka na predaj apartmány v novostavbe v meste Novalja. Budova pozostáváva z celkovo 6 apartmánov nachádzajúcich sa na prízemí, 1. poschodí a 2. poschodí. Budova sa nachádza na výbornom mieste, len 150 metrov od mora a 550 metrov od známej pláže Babe. Centrum Novalje je vzdialené 1400 metrov, kam sa dostanete popri mori popri promenáde.
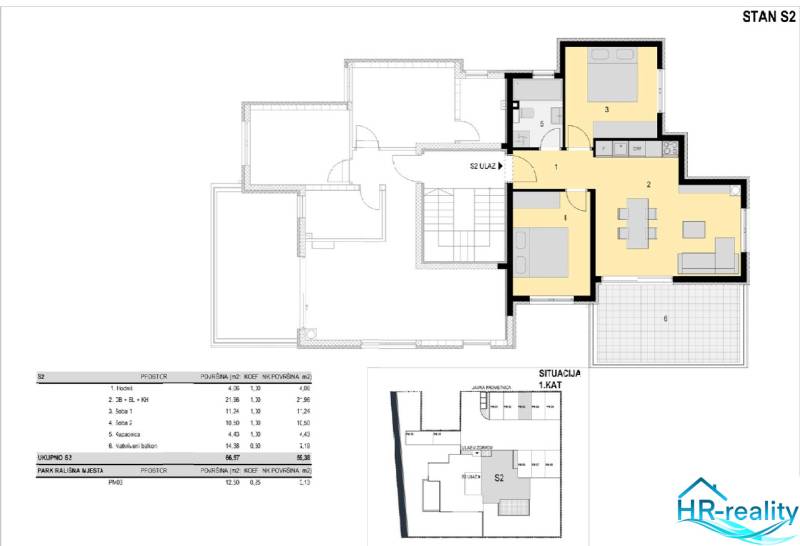
S2 – 3-izbový apartmán s celkovou rozlohou 62,51 m2, nachádzajúci sa na 1. poschodí bytového domu, pozostávajúci z: chodby, obývacej izby s kuchyňou a jedálňou, dvoch spální, kúpeľne, krytej lodžie 14,38 m2. Prislúchajúceho parkovacieho miesta o výmere 12,50 m2. Cena: 249.000€
S3 – 3-izbový byt s celkovou rozlohou 62,24 m2, nachádzajúci sa na 2. poschodí bytového domu, pozostávajúci z: chodby, obývacej izby s kuchyňou a jedálňou
dvoch spální, kúpeľne, nekrytého balkóna 2,57 m2, krytého balkóna 11,81 m2.
Prislúchajúceho parkovacieho miesta o výmere 13,50 m2. Cena: 249.000€
A2 – 3-izbový byt s celkovou rozlohou 70,19 m2, nachádzajúci sa na 1. poschodí bytového domu, pozostávajúci z: chodby, obývacej izby s kuchyňou a jedálňou
dvoch spální, dvoch kúpeľní, krytej lodžie 15,27 m2. Dvoch pridružených parkovacích miest s celkovou rozlohou 25 m2. Cena: 269.000€
A3 – 3-izbový byt s celkovou rozlohou 69,64 m2, nachádzajúci sa na 2. poschodí bytového domu, pozostávajúci z: chodby, obývacej izby s kuchyňou a jedálňou
dvoch spální, dvoch kúpeľní, krytej lodžie 12,09 m2, nekrytej lodžie 3,18 m2.
Dvoch pridružených parkovacích miest o veľkosti 12,50 m2 a 13,50 m2. Cena: 274.000€
Moderná a kvalitná výstavba, energetický certifikát triedy A, všetky apartmány ponúkajú krásny výhľad na more.
V cene sprostredkovateľskej provízie, 3% z ceny nehnuteľnosti, sú zahrnuté:
– kompletné náklady na obhliadky nehnuteľností,
– tlmočnícke služby certifikovaným tlmočníkom v prípade potreby,
– vyhotovenie overených dvojjazyčných zmlúv,
– pomoc s prepismi energií, internetu a pod.,
– spolupráca s overenými interiérovými ako aj záhradnými architektmi
– poradenská služba a pomoc pri zriaďovaní podmienok na podnikanie v Chorvátsku, v prípade záujmu o kúpu nehnuteľnosti na podnikateľské účely
Podrobné informácie
Poloha nehnuteľnosti na mape
Novalja, Chorvátsko

