Rekreačný apartmán na predaj v Rogoznica
Ponúkame na predaj celkovo 3 voľné apartmány v záverečnej fáze výstavby s krásnym výhľadom na more. Kupujúci je oslobodený od dane z prevodu nehnuteľnosti!!
Celková plocha budovy B je 507 m2 a pozostáva z 5 bytových jednotiek. Jeden byt je na prízemí, 1. poschodí a v podkroví, dva byty sa nachádzajú na 2. poschodí.
Všetky byty sú priestranné, minimálne dvojspálňové so slnečnými loggiami, balkónmi a terasami. Byty budú mať výbornú hydro, tepelnú a zvukovú izoláciu a bezpečnostný systém na odvod dymu v prípade požiaru.
Nezastavaná časť stavebného pozemku bude mať časť ako upravenú zeleň, časť ako upravenú pešiu plochu.
Ku každému bytu prislúcha parkovacie miesto 12,5m2.
BUDOVA B
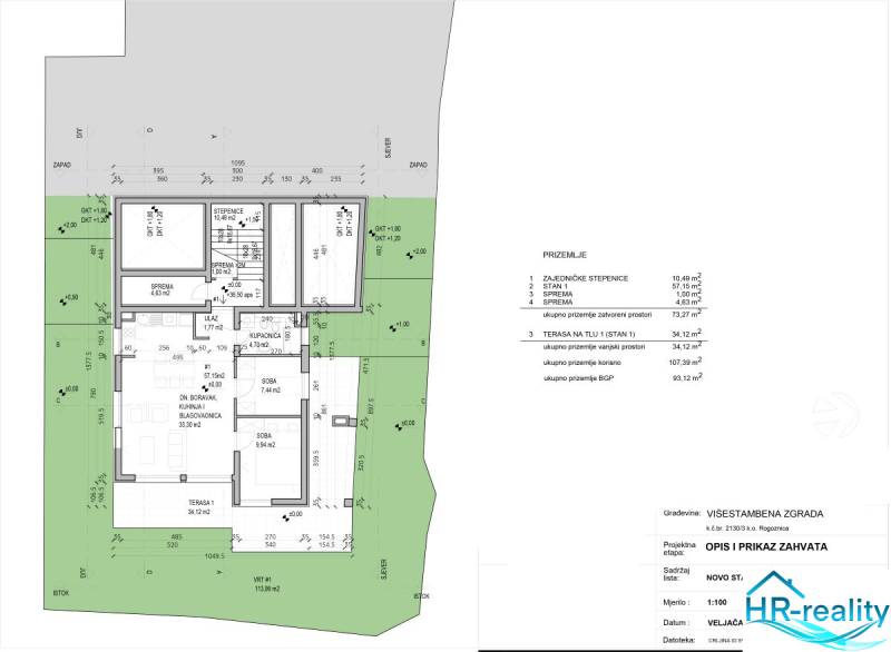
PRÍZEMIE
B1 – 2 spálne, kúpeľňa, obývačka, kuchyňa s jedálenskou časťou, 64,76 m2 + terasa 34,24 m2 a bazén. K apartmánu prislúcha 1 parkovacie miesto, záhrada o rozlohe 130m2 a samostatný štúdio apartmán s rozlohou 14,62 m2. Cena komplet aj s bazénom 424.972€
1. POSCHODIE
B2 – 3 spálne, kúpeľňa, obývačka, kuchyňa s jedálenskou časťou, 73,10 m2 + terasa 4,68 m2 – PREDANÉ!!!
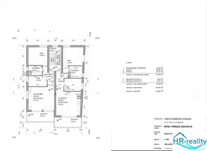
2. POSCHODIE
B3 – 2 spálne, kúpeľňa, obývačka, kuchyňa s jedálenskou časťou, 51,37 m2 + terasa 9,24 m2. Cena 265.455€
B4 – 2 spálne, kúpeľňa, obývačka, kuchyňa s jedálenskou časťou, 56,09 m2 + terasa 9,22 m2. Cena 286.650€
PODKROVIE
B5 – 3 spálne, kúpeľňa, obývačka, kuchyňa s jedálenskou časťou plocha bytu 85,28 m2 + terasa 6,05 m2 +garáž. PREDANÉ!!!
V cene sprostredkovateľskej provízie, 3% z ceny nehnuteľnosti, sú zahrnuté:
– kompletné náklady na obhliadky nehnuteľností,
– tlmočnícke služby certifikovaným tlmočníkom v prípade potreby,
– vyhotovenie overených dvojjazyčných zmlúv,
– pomoc s prepismi energií, internetu a pod.,
– spolupráca s overenými interiérovými ako aj záhradnými architektmi
– poradenská služba a pomoc pri zriaďovaní podmienok na podnikanie v Chorvátsku, v prípade záujmu o kúpu nehnuteľnosti na podnikateľské účely
Podrobné informácie
Poloha nehnuteľnosti na mape
Rogoznica, Chorvátsko

