Rekreačný apartmán na predaj v Ciovo, Trogir
Spoločnosť HR-reality vám ponúka na predaj exkluzívny predaj moderných bytov v novostavbe malého bytového domu s celkovo piatimi bytovými jednotkami, s vlastným parkovacím miestom, výhľadom na more a bazénom pre prízemný apartmán.
Dom sa nachádza len 150m od najbližšej pláže!
Dostupné sú nasledovné byty:
Prízemie:
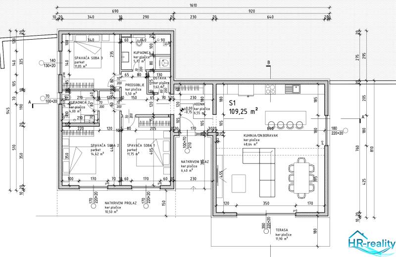
Byt S1 – 4-izbový byt s celkovou výmerou 140 m2, za cenu 350.000 eur
Byt je rozdelený na chodbu, dve kúpeľne, špajzu, tri spálne a priestrannú obývaciu časť (kuchyňa/jedáleň/obývačka) s priamym vstupom na krytú terasu, dláždenú plochu so súkromným bazénom a peknú záhradu, obklopujúcu byt.
Byt má výhľad na more a pripadajú mu 2 parkovacie miesta.
1.poschodie:
Byt S2 – PREDANÉ
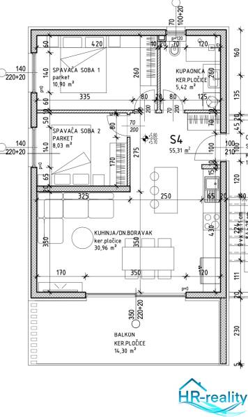
Byt S3 – 3-izbový byt s celkovou výmerou 62 m2, za cenu 230.000 eur
Byt je rozdelený na chodbu, kúpeľňu, dve spálne a obývaciu časť (kuchyňa/jedáleň/obývacia izba) s priamym prístupom na krytú terasu o výmere 14,30 m2.
Uzavretá obytná plocha je 55,31 m2.
Cena zahŕňa jedno vonkajšie nekryté parkovacie miesto.
2.poschodie:
Byt S4 – 3-izbový byt s celkovou výmerou 140 m2, za cenu 280.000 eur
Byt je rozdelený na chodbu, kúpeľňu, dve spálne a obývaciu časť (kuchyňa/jedáleň/obývacia izba) s priamym prístupom na krytý balkón s rozlohou 14,30 m2.
Uzavretá obytná plocha je 55,31 m2.
Byt má súkromnú strešnú terasu s rozlohou 69,90 m2 s otvoreným panoramatickým výhľadom na more a jedno vonkajšie parkovacie miesto.
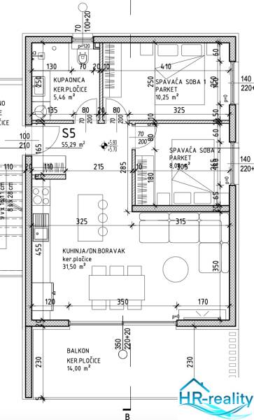
Byt S5 – 3-izbový byt s celkovou výmerou 140 m2, za cenu 280.000 eur
Byt je rozdelený na chodbu, kúpeľňu, dve spálne a obývaciu časť (kuchyňa/jedáleň/obývacia izba) s priamym prístupom na krytý balkón s rozlohou 14,30 m2.
Uzavretá obytná plocha je 55,31 m2.
Byt má súkromnú strešnú terasu s rozlohou 69,90 m2 s otvoreným panoramatickým výhľadom na more a jedno vonkajšie parkovacie miesto.
Výstavba tohto projektu už začala a dokončenie stavby je naplánované na začiatkok roku 2027.
Financovanie je postupné a podpisom zmluvy o budúcej zmluve, v tejto fáze výstavby si klient dokáže celkovú cenu bytu, po celé obdobie výstavby, zafixovať.
Projekt sa nachádza vo výbornej , obľúbenej, lokalite Okrug Gornij, blízko centra Trogiru a len pár krokov od pláže.
Pre akékoľvek ďalšie informácie sme vám k dispozícii.
V cene sprostredkovateľskej provízie, 3% z ceny nehnuteľnosti, sú zahrnuté:
– kompletné náklady na obhliadky nehnuteľností,
– tlmočnícke služby certifikovaným tlmočníkom v prípade potreby,
– vyhotovenie overených dvojjazyčných zmlúv,
– pomoc s prepismi energií, internetu a pod.,
– spolupráca s overenými interiérovými ako aj záhradnými architektmi
– poradenská služba a pomoc pri zriaďovaní podmienok na podnikanie v Chorvátsku, v prípade záujmu o kúpu nehnuteľnosti na podnikateľské účely
Podrobné informácie
Poloha nehnuteľnosti na mape
Ciovo, Trogir, Chorvátsko
